recherche immobilières sur mobile

Location Appartement Bourg-en-bresse 3 pièces 69 m2 Ain (01000) - 803 € / mois

location appartement 3 pièces 69 m² 2 chambres région Ain

803 €/mois


Location Appartement 3 pièces BOURG-EN-BRESSE 01000
Annonce Location 3 pièces Appartement Bourg-en-bresse 01

Description

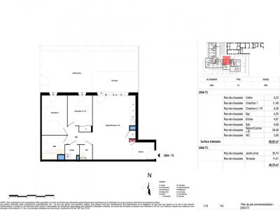
A BOURG EN BRESSE, dans la résidence neuve AU JARDIN DES DAMES, nous vous proposons ce T3 de 70.15m² situé au rez-de-chaussée. Il se compose d'une entrée, d'un séjour avec cuisine et accès à la terrasse ainsi qu'au jardin et d'un dégagement menant au WC séparées, au cellier, à la salle de bain ainsi qu'à deux chambres dont une avec placard. Une place de parking complète le lot. Eau chaude et chauffage individuels gaz. Entretien parties communes, entretien ascenseur, compris dans les provisions sur charges mensuelles et donnant lieu à une régularisation annuelle. Les honoraires de location TTC (à la charge du locataire) incluent le montant de rédaction des états des lieux facturé pour 209 euros TTC, après réalisation lors de l'entrée dans les lieux. Disponibilité prévisionnelle courant Novembre 2025. Plus de détails sur notre site AFEDIM. Logement neuf en cours de construction - DPE à venir Les informations sur les risques auxquels ce bien est exposé sont disponibles sur le site Géorisques :
Retour
Autres photos
Plan
Favoris

Contacter l'agence

CM-CIC GESTION IMMOBILIERE
2 Rond Point des Antons CS70304
44703 ORVAULT

Toutes les annonces immobilières de CM-CIC GESTION IMMOBILIERE
08.09.10.28.80 ou 08.10.00.69.36


Recevoir des annonces similaires

Location à proximité de Bourg-en-bresse