recherche immobilières sur mobile

Maison à vendre Vieux-rue 4 pièces 90 m2 Seine maritime (76160) - 225000 €

vente maison 4 pièces 90 m² 3 chambres région Seine maritime

225 000 €


Vente Maison 4 pièces VIEUX-RUE 76160
Annonce Vente 4 pièces Maison Vieux-rue 76

Description

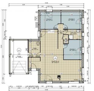
Vivez le confort du plain-pied dans une maison neuve moderne et économe ! Sur un terrain idéalement situé, dans une commune agréable avec toutes les commodités à proximité (écoles, commerces, transports...), réalisez votre projet de construction sur-mesure. Cette maison de plain-pied, à l'agencement bien pensé, vous offre un espace de vie convivial et lumineux, avec une belle cuisine ouverte sur un grand séjour, parfait pour recevoir famille et amis. Côté nuit, vous profitez de 3 chambres, d'une grande salle de bain, de WC séparés et d'un cellier fonctionnel, directement accessible depuis l'espace cuisine. Grâce à son chauffage par pompe à chaleur, cette maison garantit d'excellentes performances énergétiques et des économies au quotidien. Les prestations sont de qualité, les finitions soignées, et chaque projet est entièrement personnalisable selon vos envies. Proposée en enduit dans sa version de base, la maison peut également être réalisée en briques apparentes comme sur les photos (tarif ajusté selon la gamme choisie). Prix indiqué hors raccordements et assainissement. Un projet idéal pour une vie de plain-pied, pratique, moderne et confortable. Garanties et assurances obligatoires incluses (voir détails en agence). Hors raccordements, hors branchements. Hors frais de notaire. Terrain sélectionné et vu pour vous sous réserve de disponibilité et au prix indiqué par notre partenaire foncier.
Retour
Autres photos
Plan
Favoris

Contacter l'agence

DEMEURANCE VAL DE SEINE - ROUEN
Rue Edouard Branly
76000 Rouen

Toutes les annonces immobilières de DEMEURANCE VAL DE SEINE - ROUEN
07.57.97.01.85 ou 06.01.02.17.10


Recevoir des annonces similaires

Vente à proximité de Vieux-rue