recherche immobilières sur mobile

Location Appartement Saint-fons 2 pièces 53 m2 Rhone (69190) - 680 € / mois

location appartement 2 pièces 53 m² région Rhone

680 €/mois


Location Appartement 2 pièces SAINT-FONS 69190

Description

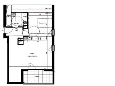
A401 - LE MARIUS- ST FONS. AU DERNIER ETAGE D'UNE RESIDENCE RECENTE (2021) A FAIBLE CONSOMMATION ENERGETIQUE. BELLE TERRASSE DE 7M² AVEC VUE DEGAGEE. SPACIEUX T2 DE 53m² composé d'une pièce à vivre avec cuisine aménagée (plaques vitro, four, hotte, meubles hauts et bas). Une belle chambre, salle de bain avec baignoire, vasque et WC. Garage individuel fermé en sous-sol sécurisé. CHAUFFAGE IND AU GAZ. VIDEOPHONE. CONSOMMATION TOTALE D'ENERGIE ENTRE 587EUR et 794EUR/AN (prix moyen des énergies indéxées au 01/01/2021) Les informations sur les risques auxquels ce bien est exposé sont disponibles sur le site Géorisques : www. georisques. gouv. fr
Retour
Autres photos
Plan
Favoris

Contacter l'agence

CONFIANCE IMMOBILIER MONPLAISIR LOCATION
108, avenue des frères Lumière
69008 LYON

Toutes les annonces immobilières de CONFIANCE IMMOBILIER MONPLAISIR LOCATION
04.72.78.89.87


Recevoir des annonces similaires

Location à proximité de Saint-fons