recherche immobilières sur mobile

Location Appartement Rouen 1 pièce 19 m2 Seine maritime (76100) - 328 € / mois

location appartement 19 m² région Seine maritime

328 €/mois


Location Appartement ROUEN 76100
Annonce Location Appartement Rouen 76

Description

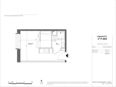
A ROUEN, Résidence LES JARDINS DE GAIA nous vous proposons un appartement T1 n°604 d'une superficie de 19.39m² au 6ème étage avec ascenseur, comprenant un séjour de 16.32m² avec espace kitchenette équipée d'un évier simple, d'une plaque de cuisson et d'un réfrigérateur, une salle d'eau avec meuble vasque, douche, WC et sèche serviette. Le bien est équipé d'un "pack prêt à vivre". Chauffage et eau chaude collectifs au gaz, entretien des parties communes, ascenseur et espaces verts, compris dans les provisions sur charges mensuelles et donnant lieu à une régularisation annuelle. Les honoraires de location TTC (à la charge du locataire) incluent le montant de rédaction des états des lieux facturé pour 213euros TTC, après réalisation lors de l'entrée dans les lieux. Disponible le 20/02/2026. Pour plus de détails sur ce logement, vous pouvez consulter la fiche descriptive de ce bien, sur votre site internet AFEDIM. Les informations sur les risques auxquels ce bien est exposé sont disponibles sur le site Géorisques :
Retour
Autres photos
Plan
Favoris

Contacter l'agence

CM-CIC GESTION IMMOBILIERE
2 Rond Point des Antons CS70304
44703 ORVAULT

Toutes les annonces immobilières de CM-CIC GESTION IMMOBILIERE
08.09.10.28.80 ou 08.10.00.69.36


Recevoir des annonces similaires

Location à proximité de Rouen