recherche immobilières sur mobile

Location Appartement Toulouse 2 pièces 38 m2 Haute garonne (31400) - 617 € / mois

location appartement 2 pièces 38 m² région Haute garonne

617 €/mois


Location Appartement 2 pièces TOULOUSE 31400
Annonce Location 2 pièces Appartement Toulouse 31

Description

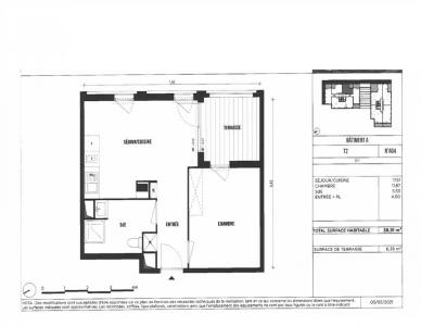
TOULOUSE - en face du métro Empalot - proche des commerces et services, dans la résidence METROPOLIS, nous vous proposons un appartement T2 (n°A04), d'une superficie de 38.91 m² situé au 1er étage. Il se compose d'une entrée, d'un séjour cuisine de 17.51 m² donnant sur une terrasse de 6.39 m², d'une chambre de 11.87 m², et d'une salle d'eau avec WC séparé. Chauffage et eau chaude collectifs urbains. Eau froide, ascenseur, espaces verts communs et entretien parties communes, compris dans les provisions sur charges mensuelles et donnant lieu à une régularisation annuelle. Les honoraires de location TTC (à la charge du locataire) incluent le montant de rédaction des états des lieux facturé 116 euros TTC, après réalisation lors de l'entrée dans les lieux. Plus de détails sur ce logement sur notre site internet afedim. Disponible à compter du 04/10/2025 Les informations sur les risques auxquels ce bien est exposé sont disponibles sur le site Géorisques :
Retour
Autres photos
Plan
Favoris

Contacter l'agence

CM-CIC GESTION IMMOBILIERE
2 Rond Point des Antons CS70304
44703 ORVAULT

Toutes les annonces immobilières de CM-CIC GESTION IMMOBILIERE
08.09.10.28.80 ou 08.10.00.69.36


Recevoir des annonces similaires

Location à proximité de Toulouse