recherche immobilières sur mobile

Location Appartement Saint-pryve-saint-mesmin 1 pièce 30 m2 Loiret (45750) - 468 € / mois

location appartement 30 m² région Loiret

468 €/mois


Location Appartement SAINT-PRYVE-SAINT-MESMIN 45750
Annonce Location Appartement Saint-pryve-saint-mesmin 45

Description

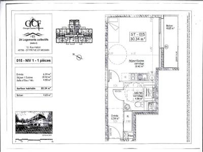
SAINT PRYVE SAINT MESMIN, dans la Résidence LE PRYVE, proche commerces de proximité (quelques minutes à pieds), écoles et transports, vous est proposé un appartement studio n°15 de 30.34 m² sis au 1er étage avec ascenseur comprenant une entrée de 6.34m², un séjour/cuisine aménagée et équipée (hotte, plaques, meubles hauts et bas) de 19.42m², une salle d'eau avec WC de 4.58m² et un balcon de 4.65 m². Parking extérieur n°44. Chauffage individuel gaz. Entretien chaudière, entretien parties communes, ascenseur et espaces verts communs, compris dans les provisions sur charges mensuelles et donnant lieu à une régularisation annuelle. Les honoraires de location TTC (à la charge du locataire) incluent le montant de rédaction des états des lieux facturé pour 91 euros TTC, après réalisation lors de l'entrée dans les lieux Plus de détails sur notre site internet AFEDIM. Les informations sur les risques auxquels ce bien est exposé sont disponibles sur le site Géorisques :
Retour
Autres photos
Plan
Favoris

Contacter l'agence

CM-CIC GESTION IMMOBILIERE
2 Rond Point des Antons CS70304
44703 ORVAULT

Toutes les annonces immobilières de CM-CIC GESTION IMMOBILIERE
08.09.10.28.80 ou 08.10.00.69.36


Recevoir des annonces similaires

Location à proximité de Saint-pryve-saint-mesmin