recherche immobilières sur mobile

Location Appartement Cesson-sevigne 2 pièces 42 m2 Ille et vilaine (35510) - 571 € / mois

location appartement 2 pièces 42 m² région Ille et vilaine

571 €/mois


Location Appartement 2 pièces CESSON-SEVIGNE 35510
Annonce Location 2 pièces Appartement Cesson-sevigne 35
Louer Appartement 42 m2 Cesson-sevigne

Description

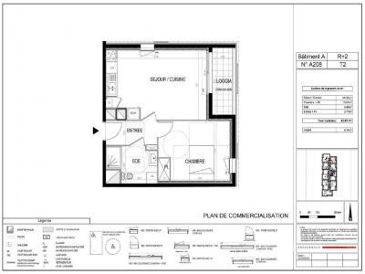
CESSON SEVIGNE Au cour d'un quartier en plein renouveau, la résidence LEGANCY bénéficie d'un emplacement recherché, offrant un accès facile et rapide au bourg de Cesson Sévigné, au centre de Rennes et aux zones d'activités commerciales. C'est ici, à proximité des commerces et écoles, que nous vous proposons un appartement T2 (n°A208), situé au 2ème étage, d'une superficie de 42.08 m². Il se compose d'une entrée, une salle d'eau avec wc, une chambre, un séjour avec cuisine donnant sur une loggia de 4.14 m². En sous-sol, une place de parking n°166. Chauffage et eau chaude individuels gaz. Eau froide, entretien des parties communes, ascenseur et espaces verts communs, compris dans les provisions sur charges mensuelles et donnant lieu à une régularisation annuelle. Les honoraires de location 426 euros TTC (à la charge du locataire) incluent le montant de rédaction des états des lieux facturé pour 126 euros TTC Les informations sur les risques auxquels ce bien est exposé sont disponibles sur le site Géorisques :
Retour
Autres photos
Plan
Favoris

Contacter l'agence

CM-CIC GESTION IMMOBILIERE
2 Rond Point des Antons CS70304
44703 ORVAULT

Toutes les annonces immobilières de CM-CIC GESTION IMMOBILIERE
08.09.10.28.80 ou 08.10.00.69.36


Recevoir des annonces similaires

Location à proximité de Cesson-sevigne