recherche immobilières sur mobile

Location Appartement Strasbourg 4 pièces 81 m2 Bas rhin (67100) - 1050 € / mois

location appartement 4 pièces 81 m² 3 chambres région Bas rhin

1 050 €/mois


Location Appartement 4 pièces STRASBOURG 67100
Annonce Location 4 pièces Appartement Strasbourg 67
Louer Appartement 81 m2 Strasbourg

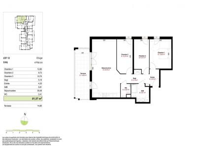
Description

A STRASBOURG dans la résidence PARENTHESE. Nous vous proposons un appartement T4 d'une superficie de 81,35m² situé au 1er étage avec ascenseur, comprenant : Une entrée, un séjour d'environ 30,39m² avec coin cuisine aménagé et équipé (four, plaque de cuisson, hotte, lave-vaisselle) donnant sur un balcon de 15,08m², trois chambres, une salle de bain et un WC séparé. Au sous-sol, deux garages n°G27 et n°G2. Eau chaude et chauffage (collectif). Entretien parties communes, entretien ascenseur et espaces verts communs, compris dans les provisions sur charges mensuelles et donnant lieu à une régularisation annuelle. Les honoraires de location 813 euros TTC (à la charge du locataire) incluent le montant de rédaction des états des lieux facturé pour 244euros TTC, après réalisation lors de l'entrée dans les lieux. Disponible le 13/10/2025. Pour plus de détails sur ce logement, vous pouvez consulter la fiche descriptive de ce bien, sur votre site internet AFEDIM. Les informations sur les risques auxquels ce bien est exposé sont disponibles sur le site Géorisques :
Retour
Autres photos
Plan
Favoris

Contacter l'agence

CM-CIC GESTION IMMOBILIERE
2 Rond Point des Antons CS70304
44703 ORVAULT

Toutes les annonces immobilières de CM-CIC GESTION IMMOBILIERE
08.09.10.28.80 ou 08.10.00.69.36


Recevoir des annonces similaires

Location à proximité de Strasbourg