recherche immobilières sur mobile

Location Appartement Saint-herblain 2 pièces 45 m2 Loire atlantique (44800) - 674 € / mois

location appartement 2 pièces 45 m² région Loire atlantique

674 €/mois


Location Appartement 2 pièces SAINT-HERBLAIN 44800
Annonce Location 2 pièces Appartement Saint-herblain 44
Louer Appartement 45 m2 Saint-herblain
Louer Appartement Saint-herblain Loire atlantique
Louer Appartement Saint-herblain 674 euros

Description

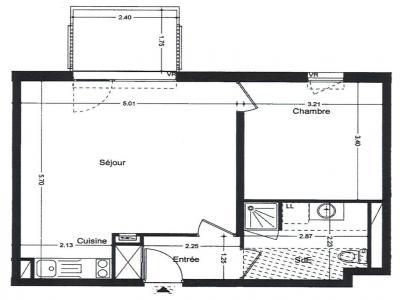
SAINT-HERBLAIN - Quartier Solvadière - Dans résidence BBC, séjour de 21.94 m², cuisine ouverte équipée et aménagée (hotte, frigo, plaque vitro avec 2 feux), donnant sur balcon de 4.20 m², 1 chambre avec placard, sde avec wc, entrée avec placard. Parking couvert. CONDITIONS DE RESSOURCES SCELLIER INTERMEDIAIRE. Logement soumis à la Garantie des Loyers Impayés (GLI). "Les informations sur les risques auxquels ce bien est exposé sont disponibles sur le site Géorisques: "
Retour
Autres photos
Plan
Favoris

Contacter l'agence

votre agent immobilier CABINET THIERRY (NANTES 44000)
CABINET THIERRY
du Couedic
44000 NANTES
Nous parlons :

Toutes les annonces immobilières de CABINET THIERRY
02.40.47.94.43


Recevoir des annonces similaires

Location à proximité de Saint-herblain