recherche immobilières sur mobile

Location Appartement Strasbourg 3 pièces 57 m2 Bas rhin (67200) - 850 € / mois

location appartement 3 pièces 57 m² 2 chambres région Bas rhin

850 €/mois


Location Appartement 3 pièces STRASBOURG 67200
Annonce Location 3 pièces Appartement Strasbourg 67
Louer Appartement 57 m2 Strasbourg

Description

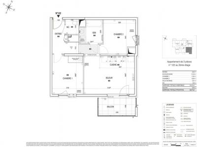
A STRASBOURG, dans la résidence neuve NEW LINK, proche des commodités, dans un cadre calme et agréable, venez découvrir cet appartement T3 de 57,42m2, avec un balcon de 6.35 m2. Il comprend une entrée avec placard, une pièce de vie avec cuisine aménagée et équipée (four, lave vaisselle, hotte et plaque de cuisson induction) de 21,28 m2, deux chambres de 11,83 m² et 10,84 m², une salle de bain avec meuble vasque et WC séparé. En extérieur, un stationnement n° P4 complète le bien. Chauffage et eau chaude collective. Entretien parties communes, entretien ascenseur, compris dans les provisions sur charges mensuelles et donnant lieu à une régularisation annuelle. Les honoraires de location TTC (à la charge du locataire) incluent le montant de rédaction des états des lieux facturé pour 172 euros TTC, après réalisation lors de l'entrée dans les lieux. Disponibilité 01/10/2025. Logement neuf en cours de construction - DPE à venir Plus de détails sur notre site AFEDIM. Les informations sur les risques auxquels ce bien est exposé sont disponibles sur le site Géorisques :
Retour
Autres photos
Plan
Favoris

Contacter l'agence

CM-CIC GESTION IMMOBILIERE
2 Rond Point des Antons CS70304
44703 ORVAULT

Toutes les annonces immobilières de CM-CIC GESTION IMMOBILIERE
08.09.10.28.80 ou 08.10.00.69.36


Recevoir des annonces similaires

Location à proximité de Strasbourg