recherche immobilières sur mobile

Location Appartement Saint-maur-des-fosses 2 pièces 46 m2 Val de Marne (94100) - 850 € / mois

location appartement 2 pièces 46 m² région Val de marne

850 €/mois


Location Appartement 2 pièces SAINT-MAUR-DES-FOSSES 94100
Annonce Location 2 pièces Appartement Saint-maur-des-fosses 94
Louer Appartement 46 m2 Saint-maur-des-fosses
Louer Appartement Saint-maur-des-fosses Val de Marne
Louer Appartement Saint-maur-des-fosses 850 euros

Description

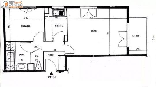
2 PIÈCES 46m² AVEC BALCON, CELLIER, PARKING S/SOL en option 800m RER le parc St Maur.2 pièces 46m² sur grand jardin dans petit immeuble 1996. 1er étage sans ascenseur. Entrée avec penderie. Séjour avec balcon terrasse 4,5m2 sur jardin. Chambre. Cuisine. Salle de bains. WC séparés. Fenêtres double vitrage. Stores électriques. Raccordement fibre. Cellier. Vidéophone + digicode. Chauffage électrique individuel programmable. Ballon eau chaude électrique. Parking sous-sol avec possibilité recharge véhicule électrique et porte parking automatique Classes énergétiques DPE Énergie primaire EP classe E 247kWhep/m².an Gaz a effet de serre GES classe C 12kg éqCO2/m².an

Équipements

• Chauffage - Climatisation
   - climatisation
• Equipement ménager
   - réfrigérateur
   - four
   - cuisinière
   - lave vaisselle
   - lave linge
   - seche linge
   - micro ondes
   - fer à repasser
   - aspirateur
• Dépendances
   - balcon
• Commodités
   - garage
   - ascenseur
Retour
Autres photos
Plan
Favoris

Contacter le propriétaire

annonce de particulier Sebastien
Afficher le téléphone

Recevoir des annonces similaires

Location à proximité de Saint-maur-des-fosses