recherche immobilières sur mobile

Location Appartement Loroux-bottereau 3 pièces 61 m2 Loire atlantique (44430) - 760 € / mois

location appartement 3 pièces 61 m² 2 chambres région Loire atlantique

760 €/mois


Location Appartement 3 pièces LOROUX-BOTTEREAU 44430
Annonce Location 3 pièces Appartement Loroux-bottereau 44

Description

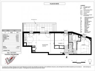
Au Loroux Bottereau, dans la résidence neuve VILLA OPALE, nous vous proposons un logement PMR T3 N° 001 de 61.09m² situé au rez-de-chaussée avec ascenseur. Il se compose, d'une entrée, d'une pièce de vie avec cuisine donnant sur une terrasse de 11.77m² ainsi qu'un grand jardin privatif, deux chambres dont une avec placard, une salle d'eau et WC séparé. Parking extérieur N°01 couvert. Eau chaude et chauffage (individuel). Entretien parties communes, entretien ascenseur et espaces verts communs, compris dans les provisions sur charges mensuelles et donnant lieu à une régularisation annuelle. Les honoraires de location TTC (à la charge du locataire) incluent le montant de rédaction des états des lieux facturé pour 183euros TTC, après réalisation lors de l'entrée dans les lieux. Disponible le 29/01/2026. Pour plus de détails sur ce logement, vous pouvez consulter la fiche descriptive de ce bien, sur votre site internet AFEDIM. Les informations sur les risques auxquels ce bien est exposé sont disponibles sur le site Géorisques :
Retour
Autres photos
Plan
Favoris

Contacter l'agence

CM-CIC GESTION IMMOBILIERE
2 Rond Point des Antons CS70304
44703 ORVAULT

Toutes les annonces immobilières de CM-CIC GESTION IMMOBILIERE
08.09.10.28.80 ou 08.10.00.69.36


Recevoir des annonces similaires

Location à proximité de Loroux-bottereau