recherche immobilières sur mobile

Location Appartement Havre 3 pièces 53 m2 Seine maritime (76600) - 717 € / mois

location appartement 3 pièces 53 m² 2 chambres région Seine maritime

717 €/mois


Location Appartement 3 pièces HAVRE 76600
Annonce Location 3 pièces Appartement Havre 76

Description

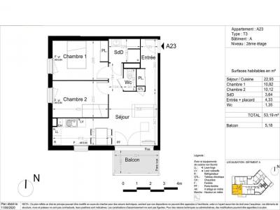
LE HAVRE -Ecoquartier Bléville, situé près de tous les services et transports , nous vous proposons dans la résidence LES TERRASSES CALYPSO un appartement T3 n°A23 de 53.19m². Situé au 2e étage dans le bâtiment A, il comprend une entrée, un séjour de 22.93m² avec cuisine ouverte donnant sur un balcon de 5.18m², deux chambres de 10.82m² et de 10.12m², une salle d'eau et un WC séparé. Au sous-sol, un emplacement de stationnement n°43. Chauffage et eau chaude individuels au gaz. Entretien parties communes, espaces verts communs compris dans les provisions sur charges mensuelles et donnant lieu à une régularisation annuelle. Les honoraires de location TTC (à la charge du locataire) incluent le montant de rédaction des états des lieux facturé pour 159 euros TTC, après réalisation lors de l'entrée dans les lieux. Plus de détails sur notre site afedim.fr. Disponible le 02/01/2026. Les informations sur les risques auxquels ce bien est exposé sont disponibles sur le site Géorisques :
Retour
Autres photos
Plan
Favoris

Contacter l'agence

CM-CIC GESTION IMMOBILIERE
2 Rond Point des Antons CS70304
44703 ORVAULT

Toutes les annonces immobilières de CM-CIC GESTION IMMOBILIERE
08.09.10.28.80 ou 08.10.00.69.36


Recevoir des annonces similaires

Location à proximité de Havre