recherche immobilières sur mobile

Location Appartement Saint-herblain 2 pièces 54 m2 Loire atlantique (44800) - 673 € / mois

location appartement 2 pièces 54 m² région Loire atlantique

673 €/mois


Location Appartement 2 pièces SAINT-HERBLAIN 44800
Annonce Location 2 pièces Appartement Saint-herblain 44
Louer Appartement 54 m2 Saint-herblain

Description

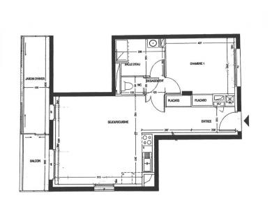
SAINT HERBLAIN, dans une résidence BBC, un appartement Type 2 comprenant : Une entrée avec placard, un séjour donnant sur un jardin d'hiver de 7.80m² et un balcon de 4.50m², une cuisine ouverte aménagée et équipée d'une hotte, d'un four et de plaques, une chambre avec placard , une salle d'eau, wc séparés, dégagement. Parking Couvert. CONDITIONS RESSOURCES : LOI PINEL. Les informations sur les risques auxquels ce bien est exposé sont disponibles sur le site Géorisques: .
Retour
Autres photos
Plan
Favoris

Contacter l'agence

votre agent immobilier CABINET THIERRY (NANTES 44000)
CABINET THIERRY
du Couedic
44000 NANTES
Nous parlons :

Toutes les annonces immobilières de CABINET THIERRY
02.40.47.94.43


Recevoir des annonces similaires

Location à proximité de Saint-herblain