recherche immobilières sur mobile

Location Appartement Olonne-sur-mer 2 pièces 46 m2 Vendee (85340) - 635 € / mois

location appartement 2 pièces 46 m² région Vendee

635 €/mois


Location Appartement 2 pièces OLONNE-SUR-MER 85340
Annonce Location 2 pièces Appartement Olonne-sur-mer 85

Description

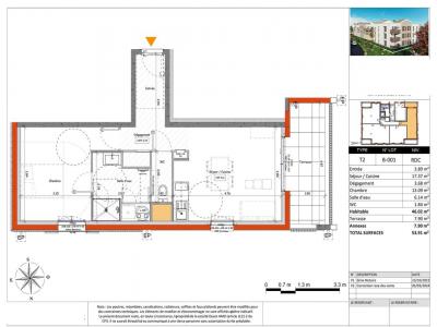
LES SABLES D'OLONNE. Nous vous proposons un appartement T2 n°B001 de 46,02m², situé au rez de chaussée, il est composé d'un séjour cuisine de 17,37m², d'une salle d'eau de 6,14m² et d'une chambre de 13,09m². Une terrasse de 7,90m² et un parking complètent l'ensemble. Chauffage et eau chaude individuel électrique. Eau froide individuelle. Entretien parties communes et espaces verts communs compris dans les provisions sur charges mensuelles et donnant lieu à une régularisation annuelle. Les honoraires de location 598 euros TTC (à la charge du locataire) incluent le montant de rédaction des états des lieux facturé pour 138 euros TTC, après réalisation lors de l'entrée dans les lieux. Pour plus de détails sur ce logement, vous pouvez consulter la fiche descriptive de ce bien, sur notre site internet AFEDIM. Logement neuf en cours de construction - DPE en attente. Les informations sur les risques auxquels ce bien est exposé sont disponibles sur le site Géorisques :
Retour
Autres photos
Plan
Favoris

Contacter l'agence

CM-CIC GESTION IMMOBILIERE
2 Rond Point des Antons CS70304
44703 ORVAULT

Toutes les annonces immobilières de CM-CIC GESTION IMMOBILIERE
08.09.10.28.80 ou 08.10.00.69.36


Recevoir des annonces similaires

Location à proximité de Olonne-sur-mer