recherche immobilières sur mobile

Location Appartement Clermont-ferrand 2 pièces 40 m2 Puy de dome (63000) - 577 € / mois

location appartement 2 pièces 40 m² région Puy de dome

577 €/mois


Location Appartement 2 pièces CLERMONT-FERRAND 63000

Description

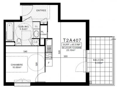
A407 LE FLAUBERT : DOUBLEMENT EXPOSE T2 LUMINEUX EN ETAGE ELEVE D'UNE RESIDENCE RECENTE BBC DE STANDING. TERRASSE DE PLUS DE 8M² AVEC VUE DEGAGEE. Pièce à vivre avec cuisine US aménagée (plaques vitro, four, hotte, meubles hauts et bas). Une chambre en sol parquet. Salle de bain avec meuble sous vasque et sèche-serviettes. Place de parking privative en sous-sol. VISIOPHONE. PROCHE COMMERCES. Consommation d'énergie totale entre 715 EUR et 967 EUR par an (prix moyens des énergies indexés au 1er janvier 2021). Les informations sur les risques auxquels ce bien est exposé sont disponibles sur le site Géorisques : www. georisques. gouv. fr
Retour
Autres photos
Plan
Favoris

Contacter l'agence

CONFIANCE IMMOBILIER MONPLAISIR LOCATION
108, avenue des frères Lumière
69008 LYON

Toutes les annonces immobilières de CONFIANCE IMMOBILIER MONPLAISIR LOCATION
04.72.78.89.87


Recevoir des annonces similaires

Location à proximité de Clermont-ferrand