recherche immobilières sur mobile

Location Appartement Villefranche-sur-saone 3 pièces 57 m2 Rhone (69400) - 855 € / mois

location appartement 3 pièces 57 m² 2 chambres région Rhone

855 €/mois


Location Appartement 3 pièces VILLEFRANCHE-SUR-SAONE 69400
Annonce Location 3 pièces Appartement Villefranche-sur-saone 69

Description

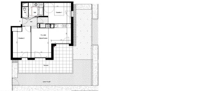
A002 LE ROMEO : DONNANT INTERIEUR DE RESIDENCE RECENTE BBC DE STANDING ARBOREE .AGREABLE T3 DONNANT ENTIEREMENT SUR TERRASSE ET JARDIN DE 47M². Il se compose d'une entrée, d'une belle pièce de vie claire avec cuisine US aménagée (plaques vitro, hotte, four, meubles hauts et bas). 2 chambres en sol parquet dont une avec placard mural aménagé. Salle de bain avec sèche-serviettes. Garage double en sous-sol sécurisé .CHAUFFAGE IND AU GAZ. VISIOPHONE. A PROXIMITE DU CENTRE VILLE ET DES COMMERCES. Consommation d'énergie totale 458 EUR par an (prix moyens des énergies indexés au 15.8.2015). Les informations sur les risques auxquels ce bien est exposé sont disponibles sur le site Géorisques : www. georisques. gouv. fr
Retour
Autres photos
Plan
Favoris

Contacter l'agence

CONFIANCE IMMOBILIER MONPLAISIR LOCATION
108, avenue des frères Lumière
69008 LYON

Toutes les annonces immobilières de CONFIANCE IMMOBILIER MONPLAISIR LOCATION
04.72.78.89.87


Recevoir des annonces similaires

Location à proximité de Villefranche-sur-saone