recherche immobilières sur mobile

Appartement à vendre Saint-quentin 2 pièces 41 m2 Aisne (02100) - 57500 €

vente appartement 2 pièces 41 m² région Aisne

57 500 €


Vente Appartement 2 pièces SAINT-QUENTIN 02100
Annonce Vente 2 pièces Appartement Saint-quentin 02
Acheter Appartement 41 m2 Saint-quentin

Description

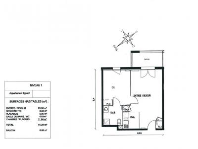
Idéal investisseur - Forom® Immobilier Forom Immobilier vous propose cet appartement T2 d'une surface d'environ 41,24 m² au 1er étage situé dans une résidence sécurisée sur la commune de Saint-Quentin. Le logement dispose d'un séjour, une kitchenette, une chambre, une salle de bains avec un WC, un balcon et une place de parking. o Loyer mensuel : 537,45E / mois soit 502,45E HC + 35E CL o Rentabilité : 11,21% brute o Charges de copropriété : 80,92E / mois o Taxe foncière : 1 351E / an o Date de fin de bail : 10/05/2029 o DPE : C o Nombre de lots : 77 o Honoraires charge vendeur La résidence : Résidence récente au cadre paisible et recherché, elle combine praticité et attractivité locative.À deux pas des commodités et parfaitement desservie, elle propose des appartements lumineux avec balcon ou terrasse, stationnement privatif et faibles charges.Un emplacement stratégique dans une ville dynamique, idéal pour un investissement sécurisé à fort potentiel de rentabilité.
Retour
Autres photos
Plan
Favoris

Contacter l'agence

BONNEFOY IMMOBILIER
26 R Du Faubourg Bonnefoy
31000 TOULOUSE

Toutes les annonces immobilières de BONNEFOY IMMOBILIER
05.67.76.62.50


Recevoir des annonces similaires

Vente à proximité de Saint-quentin