recherche immobilières sur mobile

Location Appartement Saint-fons 2 pièces 44 m2 Rhone (69190) - 600 € / mois

location appartement 2 pièces 44 m² région Rhone

600 €/mois


Location Appartement 2 pièces SAINT-FONS 69190

Description

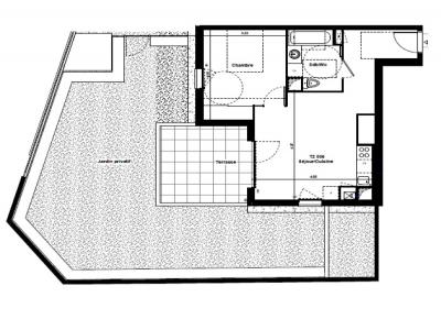
A005 - LE MARIUS - SPACIEUX T2 DE 44m² AVEC SON JARDIN PRIVATIF DE 79M² ET SA TERRASS DANS UNE RESIDENCE RECENTE (2021) BBC. Pièce de vie de 27m² avec cuisine US équipée et meublée (plaques vitro, four, hotte, meubles hauts et bas). Une grande chambre avec placard aménagé, salle de bain avec baignoire, vasque et WC. Place de parking privative en sous-sol sécurisé. VIDEOPHONE.CHAUFFAGE IND AU GAZ. CONSOMMATION D'ENERGIE TOTALE ENTRE 450EUR et 609EUR/AN (prix moyen des énergies indéxées au 01/01/2021) Les informations sur les risques auxquels ce bien est exposé sont disponibles sur le site Géorisques : www. georisques. gouv. fr
Retour
Autres photos
Plan
Favoris

Contacter l'agence

CONFIANCE IMMOBILIER MONPLAISIR LOCATION
108, avenue des frères Lumière
69008 LYON

Toutes les annonces immobilières de CONFIANCE IMMOBILIER MONPLAISIR LOCATION
04.72.78.89.87


Recevoir des annonces similaires

Location à proximité de Saint-fons