recherche immobilières sur mobile

Location Appartement Clermont-ferrand 2 pièces 43 m2 Puy de dome (63000) - 619 € / mois

location appartement 2 pièces 43 m² région Puy de dome

619 €/mois


Location Appartement 2 pièces CLERMONT-FERRAND 63000
Annonce Location 2 pièces Appartement Clermont-ferrand 63

Description

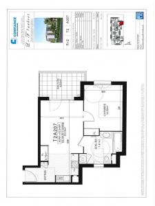
A CLERMONT-FERRAND - Dans la résidence "LE FLAUBERT", nous vous proposons un appartement T2 N°A207 situé au 2ème étage comprenant une entrée, un séjour avec cuisine ouverte et placard donnant sur un balcon, une chambre avec placard, une salle de bain avec baignoire et WC. Cet appartement dispose d'une place de stationnement N°52 en extérieur. Chauffage et eau chaude individuelle au gaz. Entretien parties communes et espaces verts communs, compris dans les provisions sur charges mensuelles et donnant lieu à une régularisation annuelle. Les honoraires de location sont facturés directement au locataire par le partenaire. Quant aux honoraires de rédaction des états des lieux, ils sont facturés par AFEDIM Gestion pour 131E TTC, après réalisation, lors de l'entrée dans les lieux. Détails sur notre site AFEDIM. Les informations sur les risques auxquels ce bien est exposé sont disponibles sur le site Géorisques :
Retour
Autres photos
Plan
Favoris

Contacter l'agence

CM-CIC GESTION IMMOBILIERE
2 Rond Point des Antons CS70304
44703 ORVAULT

Toutes les annonces immobilières de CM-CIC GESTION IMMOBILIERE
08.09.10.28.80 ou 08.10.00.69.36


Recevoir des annonces similaires

Location à proximité de Clermont-ferrand