recherche immobilières sur mobile

Location Appartement Saint-herblain 2 pièces 46 m2 Loire atlantique (44800) - 612 € / mois

location appartement 2 pièces 46 m² région Loire atlantique

612 €/mois


Location Appartement 2 pièces SAINT-HERBLAIN 44800
Annonce Location 2 pièces Appartement Saint-herblain 44

Description

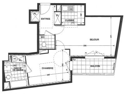
ST HERBLAIN BOURG - Dans résidence récente, T2 comprenant : un séjour de 18.55 m², cuisine ouverte, 1 chambre avec sdb attenante avec placard, le tout donnant sur balcon de 5.80 m², wc, entrée avec placards. Parking couvert. « Les informations sur les risques auxquels ce bien est exposé sont disponibles sur le site Géorisques : »
Retour
Autres photos
Plan
Favoris

Contacter l'agence

votre agent immobilier CABINET THIERRY (NANTES 44000)
CABINET THIERRY
du Couedic
44000 NANTES
Nous parlons :

Toutes les annonces immobilières de CABINET THIERRY
02.40.47.94.43


Recevoir des annonces similaires

Location à proximité de Saint-herblain