recherche immobilières sur mobile

Location Appartement Saint-nazaire 2 pièces 45 m2 Loire atlantique (44600) - 549 € / mois

location appartement 2 pièces 45 m² région Loire atlantique

549 €/mois


Location Appartement 2 pièces SAINT-NAZAIRE 44600
Annonce Location 2 pièces Appartement Saint-nazaire 44
Louer Appartement 45 m2 Saint-nazaire

Description

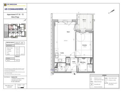
A SAINT NAZAIRE, dans la résidence neuve LES COMMANDIERES II , nous vous proposons un appartement T2 N° 34 au 3 ème étage avec ascenseur d'une superficie de 45 m²comprenant : une entrée avec placard, un séjour cuisine et une chambre de 11,5 m² ouvrant tout deux sur un balcon de 6,2 m² orienté NORD-OUEST, une salle d'eau et des WC séparés. Une place de parking extérieur N°11 et un local vélo N°8. Chauffage individuel gaz. Eau froide, entretien parties communes, entretien ascenseur et espaces verts communs, compris dans les provisions sur charges mensuelles et donnant lieu à une régularisation annuelle. Les honoraires de location TTC (à la charge du locataire) incluent le montant de rédaction des états des lieux facturé pour 135euros TTC, après réalisation lors de l'entrée dans les lieux. Disponible le 13/12/2025. Pour plus de détails sur ce logement, vous pouvez consulter la fiche descriptive de ce bien, sur notre site internet AFEDIM. Les informations sur les risques auxquels ce bien est exposé sont disponibles sur le site Géorisques :
Retour
Autres photos
Plan
Favoris

Contacter l'agence

CM-CIC GESTION IMMOBILIERE
2 Rond Point des Antons CS70304
44703 ORVAULT

Toutes les annonces immobilières de CM-CIC GESTION IMMOBILIERE
08.09.10.28.80 ou 08.10.00.69.36


Recevoir des annonces similaires

Location à proximité de Saint-nazaire