recherche immobilières sur mobile

Location Appartement Feyzin 1 pièce 30 m2 Rhone (69320) - 612 € / mois

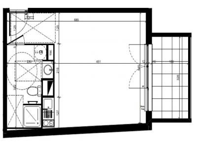
location appartement 30 m² région Rhone

612 €/mois


Location Appartement FEYZIN 69320

Description

N°12 LE CLOS DU FORT - FEYZIN - T1 DE 30M² AVEC SON BALCON COTE VERDURE, DANS UNE PETITE RESIDENCE RECENTE (2021) AU CENTRE DU VILLAGE DE FEYZIN, A PROXIMITE IMMEDIATE DES PRINCIPALES COMMODITES. Pièce de vie de 24m² avec cuisine aménagée et équipée (plaque vitro, hotte, meubles hauts et bas), salle d'eau avec bac à douche, vasque et WC. Chauffage individuel électrique à basse consommation. Place de parking privatif en sous-sol sécurisé CONSOMMATION TOTALE D'ENERGIE ESTIMEE ENTRE 428EUR et 619EUR/AN (prix moyen des énergies indéxées au 01/01/2021) Les informations sur les risques auxquels ce bien est exposé sont disponibles sur le site Géorisques : www. georisques. gouv. fr
Retour
Autres photos
Plan
Favoris

Contacter l'agence

CONFIANCE IMMOBILIER MONPLAISIR LOCATION
108, avenue des frères Lumière
69008 LYON

Toutes les annonces immobilières de CONFIANCE IMMOBILIER MONPLAISIR LOCATION
04.72.78.89.87


Recevoir des annonces similaires

Location à proximité de Feyzin