recherche immobilières sur mobile

Location Appartement Avrille 2 pièces 40 m2 Maine et loire (49240) - 627 € / mois

location appartement 2 pièces 40 m² région Maine et loire

627 €/mois


Location Appartement 2 pièces AVRILLE 49240
Annonce Location 2 pièces Appartement Avrille 49

Description

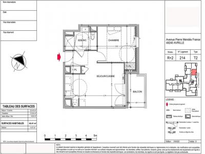
A AVRILLE, dans la résidence neuve LINEAL, nous vous proposons un appartement T2 de 40.41m² situé au 2ème étage avec ascenseur. Il comprend une entrée avec placard, un séjour/cuisine (meubles, plaque de cuisson et emplacement four) donnant sur un balcon de 4.47m², une chambre avec placard et une salle d'eau avec WC. Au rez-de-chaussée un emplacement de stationnement. Chauffage et eau chaude individuels gaz. Disponibilité à fin décembre 2025. Entretien espaces verts, parties communes et ascenseur compris dans les provisions sur charges mensuelles et donnant lieu à une régularisation annuelle. Les honoraires de location TTC (à la charge du locataire) incluent le montant de rédaction des états des lieux facturé pour 121.00 euros TTC, après réalisation lors de l'entrée dans les lieux. Pour plus de détails sur ce logement, vous pouvez consulter la fiche descriptive de ce bien, sur notre site internet AFEDIM. Logement en cours de construction - DPE à venir. Les informations sur les risques auxquels ce bien est exposé sont disponibles sur le site Géorisques :
Retour
Autres photos
Plan
Favoris

Contacter l'agence

CM-CIC GESTION IMMOBILIERE
2 Rond Point des Antons CS70304
44703 ORVAULT

Toutes les annonces immobilières de CM-CIC GESTION IMMOBILIERE
08.09.10.28.80 ou 08.10.00.69.36


Recevoir des annonces similaires

Location à proximité de Avrille