recherche immobilières sur mobile

Location Appartement Miramas 2 pièces 42 m2 Bouches du Rhone (13140) - 747 € / mois

location appartement 2 pièces 42 m² région Bouches du rhone

747 €/mois


Location Appartement 2 pièces MIRAMAS 13140
Annonce Location 2 pièces Appartement Miramas 13

Description

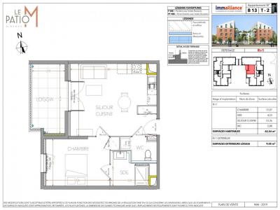
A MIRAMAS, dans la résidence PATIO M, nous vous proposons un appartement T2 B13 de 42.54 m², comprenant une entrée avec placard, un séjour avec coin cuisine donnant sur une belle loggia, une chambre avec placard et accès privatif à la salle d'eau et un WC séparé. Cet appartement dispose également d'un garage n°55 ainsi que d'un parking n°67. Chauffage individuel électrique. Eau froide, eau chaude entretien parties communes, entretien ascenseur, compris dans les provisions sur charges mensuelles et donnant lieu à une régularisation annuelle. Le montant des honoraires de location est facturé directement au locataire par le partenaire pour 425 euros TTC. Quant au montant des honoraires de rédaction des états des lieux, il est facturé par AFEDIM Gestion Immobilière pour 127 euros TTC, après réalisation, lors de l'entrée dans les lieux. Pour plus de détails, consultez la fiche descriptive, sur notre site internet AFEDIM. Les informations sur les risques auxquels ce bien est exposé sont disponibles sur le site Géorisques :
Retour
Autres photos
Plan
Favoris

Contacter l'agence

CM-CIC GESTION IMMOBILIERE
2 Rond Point des Antons CS70304
44703 ORVAULT

Toutes les annonces immobilières de CM-CIC GESTION IMMOBILIERE
08.09.10.28.80 ou 08.10.00.69.36


Recevoir des annonces similaires

Location à proximité de Miramas