recherche immobilières sur mobile

Location Appartement Cluses 2 pièces 39 m2 Haute savoie (74300) - 625 € / mois

location appartement 2 pièces 39 m² région Haute savoie

625 €/mois


Location Appartement 2 pièces CLUSES 74300

Description

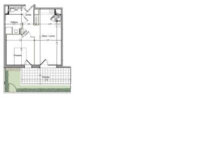
B005 CHATEAU THIERRY JOLIE T2 DE 39M²AVEC TERRASSE ET JARDIN PRIVATIF DE 20M² SITUE DANS RESIDENCE RECENTE BBC DE STANDING. L'appartement est composé d'un beau séjour vie donnant accès à une terrasse, une cuisine US équipée (hotte, plaques vitro, four, meubles haut et bas), une chambre en sol parquet avec placard, avec un accès à la terrasse, une salle de bain aménagée avec meuble sous vasque et sèche serviette. Garage fermé en sous-sol. Chauffage individuel gaz. Visiophone. Consommation d'énergie totale entre 580-840EUR par an (prix moyens des énergies indexés au 2021.2022.2023). Les informations sur les risques auxquels ce bien est exposé sont disponibles sur le site Géorisques : www. georisques. gouv. fr
Retour
Autres photos
Plan
Favoris

Contacter l'agence

CONFIANCE IMMOBILIER MONPLAISIR LOCATION
108, avenue des frères Lumière
69008 LYON

Toutes les annonces immobilières de CONFIANCE IMMOBILIER MONPLAISIR LOCATION
04.72.78.89.87


Recevoir des annonces similaires

Location à proximité de Cluses