recherche immobilières sur mobile

Location Appartement Cluses 2 pièces 40 m2 Haute savoie (74300) - 648 € / mois

location appartement 2 pièces 40 m² région Haute savoie

648 €/mois


Location Appartement 2 pièces CLUSES 74300
Annonce Location 2 pièces Appartement Cluses 74

Description

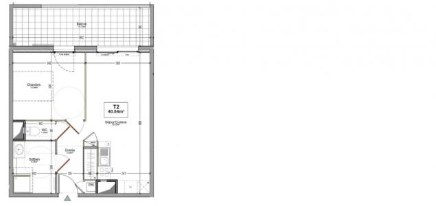
B504 LA GENESE : MAGNIFIQUE TERRASSE DE PLUS DE 11M² AVEC VUE DEGAGEE POUR CE SUPERBE T2 DE 40M² SITUE AU COEUR D'UNE RESIDENCE RECENTE BBC DE STANDING comprenant une entrée avec rangement, un séjour avec cuisine US équipée et meublée (hotte, plaques vitro, four, meubles haut et bas), une chambre en sol parquet de 11m², une salle d'eau avec meuble sous vasque et sèche serviettes. WC séparés. Garage simple fermé en sous-sol sécurisé avec place de parking extérieur privative. Vidéophone. Chauffage au gaz ind. A 5 MIN DU CENTRE VILLE Consommation d'énergie totale entre 540 EUR et 760 EUR par an (prix moyens des énergies indexés sur les années 2021,2022,2023). Les informations sur les risques auxquels ce bien est exposé sont disponibles sur le site Géorisques : www. georisques. gouv. fr
Retour
Autres photos
Plan
Favoris

Contacter l'agence

CONFIANCE IMMOBILIER MONPLAISIR LOCATION
108, avenue des frères Lumière
69008 LYON

Toutes les annonces immobilières de CONFIANCE IMMOBILIER MONPLAISIR LOCATION
04.72.78.89.87


Recevoir des annonces similaires

Location à proximité de Cluses