recherche immobilières sur mobile

Location Appartement Saint-bernard 2 pièces 46 m2 Ain (01600) - 740 € / mois

location appartement 2 pièces 46 m² région Ain

740 €/mois


Location Appartement 2 pièces SAINT-BERNARD 01600
Annonce Location 2 pièces Appartement Saint-bernard 01

Description

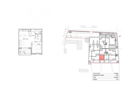
A ST BERNARD dans la résidence neuve JARDINS SECRETS, nous vous proposons un appartement de type T2 n° B24 de 46.40 m². Situé au 2ème étage avec ascenseur. Il comprend : un séjour-cuisine aménagée et équipée (plaque de cuisson - hotte) de 21,6 m² donnant sur une loggia de 8.20 m², une chambre de 11.40 m², une salle d'eau de 4.80 m² et un WC séparé. Au sous-sol un garage n° G15. Eau chaude et chauffage individuel gaz. Eau froide individuel. Entretien parties communes, entretien chaudière individuelle, entretien ascenseur et espaces verts communs, compris dans les provisions sur charges mensuelles et donnant lieu à une régularisation annuelle. Les honoraires de location incluent le montant de rédaction des états des lieux facturé pour 139.00 euros TTC, après réalisation lors de l'entrée dans les lieux. Pour plus de détails sur ce logement, vous pouvez consulter la fiche descriptive de ce bien, sur notre site internet AFEDIM. DPE à venir Les informations sur les risques auxquels ce bien est exposé sont disponibles sur le site Géorisques :
Retour
Autres photos
Plan
Favoris

Contacter l'agence

CM-CIC GESTION IMMOBILIERE
2 Rond Point des Antons CS70304
44703 ORVAULT

Toutes les annonces immobilières de CM-CIC GESTION IMMOBILIERE
08.09.10.28.80 ou 08.10.00.69.36


Recevoir des annonces similaires