recherche immobilières sur mobile

Location Appartement Saran 3 pièces 57 m2 Loiret (45770) - 743 € / mois

location appartement 3 pièces 57 m² 2 chambres région Loiret

743 €/mois


Location Appartement 3 pièces SARAN 45770
Annonce Location 3 pièces Appartement Saran 45

Description

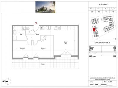
A SARAN - nous vous proposons dans la résidence neuve LES FLEURS D'O, un appartement T3 n°26 de 57.21 m². Situé au 3ème étage du bâtiment A1, il comprend un séjour/cuisine (plaque induction et hotte) de 23m² donnant sur une terrasse de 19m², deux chambres dont une avec placard, une salle de bains et un WC séparé. Chauffage et eau chaude collectifs. Au sous-sol, deux emplacements de stationnement n°155 et n°156. L'immeuble est équipé de la fibre. Entretien parties communes, ascenseur et espaces verts communs, compris dans les provisions sur charges mensuelles et donnant lieu à une régularisation annuelle. Les honoraires de location TTC (à la charge du locataire) incluent le montant de rédaction des états des lieux facturé pour 171euros TTC, après réalisation lors de l'entrée dans les lieux. Pour plus de détails sur ce logement, vous pouvez consulter la fiche descriptive de ce bien, sur notre site internet AFEDIM-locations. Plus de détails sur notre site internet AFEDIM. Les informations sur les risques auxquels ce bien est exposé sont disponibles sur le site Géorisques :
Retour
Autres photos
Plan
Favoris

Contacter l'agence

CM-CIC GESTION IMMOBILIERE
2 Rond Point des Antons CS70304
44703 ORVAULT

Toutes les annonces immobilières de CM-CIC GESTION IMMOBILIERE
08.09.10.28.80 ou 08.10.00.69.36


Recevoir des annonces similaires

Location à proximité de Saran