recherche immobilières sur mobile

Location Appartement Vernon 3 pièces 62 m2 Eure (27200) - 855 € / mois

location appartement 3 pièces 62 m² 2 chambres région Eure

855 €/mois


Location Appartement 3 pièces VERNON 27200
Annonce Location 3 pièces Appartement Vernon 27

Description

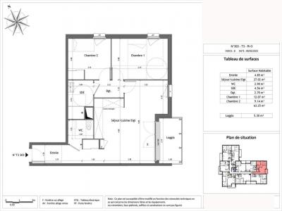
A VERNON - Dans la résidence neuve "LE 104", nous vous proposons un appartement T3 N°303 de 62.83m² situé au 3ème étage. Il se compose d'une entrée avec placard, d'une pièce de vie de 26.82m² avec cuisine ouverte et donnant sur une loggia de 5.30m², de deux chambres de 11.89m² et 9.07m², d'une salle d'eau et d'un WC séparé. Cet appartement dispose d'une place de stationnement N°18. Chauffage et eau chaude collective. Entretien parties communes, entretien ascenseur, compris dans les provisions sur charges mensuelles et donnant lieu à une régularisation annuelle. Les honoraires de location TTC (à la charge du locataire) incluent le montant de rédaction des états des lieux facturé pour 188 euros TTC, après réalisation lors de l'entrée dans les lieux. Disponible courant décembre 2025. Plus de détails sur notre site AFEDIM. Les informations sur les risques auxquels ce bien est exposé sont disponibles sur le site Géorisques :
Retour
Autres photos
Plan
Favoris

Contacter l'agence

CM - CIC GESTION IMMOBILIERE
2 rond point des AntonsBP70904
44703 ORVAULT

Toutes les annonces immobilières de CM - CIC GESTION IMMOBILIERE
08.09.10.28.80


Recevoir des annonces similaires

Location à proximité de Vernon