recherche immobilières sur mobile

Location Appartement Vernon 3 pièces 68 m2 Eure (27200) - 850 € / mois

location appartement 3 pièces 68 m² 2 chambres région Eure

850 €/mois


Location Appartement 3 pièces VERNON 27200
Annonce Location 3 pièces Appartement Vernon 27

Description

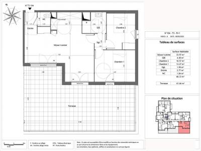
A VERNON - Dans la résidence neuve "LE 104", nous vous proposons un appartement T3 N°104 de 68.33m² situé au 1er étage. Il se compose d'une entrée avec placard, d'une pièce de vie de 33.57m² avec coin cuisine et donnant sur une grande terrasse de 61.66m², de deux chambres de 13.27m² et 10.57m², d'une salle d'eau de 4.40m² et d'un WC séparé. Cet appartement dispose également d'une place de stationnement N°11. Chauffage et eau chaude collective. Entretien parties communes, entretien ascenseur, compris dans les provisions sur charges mensuelles et donnant lieu à une régularisation annuelle. Les honoraires de location TTC (à la charge du locataire) incluent le montant de rédaction des états des lieux facturé pour 204 euros TTC, après réalisation lors de l'entrée dans les lieux. Disponible courant décembre 2025. Plus de détails sur notre site AFEDIM. Les informations sur les risques auxquels ce bien est exposé sont disponibles sur le site Géorisques :
Retour
Autres photos
Plan
Favoris

Contacter l'agence

CM-CIC GESTION IMMOBILIERE
2 Rond Point des Antons CS70304
44703 ORVAULT

Toutes les annonces immobilières de CM-CIC GESTION IMMOBILIERE
08.09.10.28.80 ou 08.10.00.69.36


Recevoir des annonces similaires

Location à proximité de Vernon