recherche immobilières sur mobile

Location Appartement Brumath 3 pièces 66 m2 Bas rhin (67170) - 819 € / mois

location appartement 3 pièces 66 m² 2 chambres région Bas rhin

819 €/mois


Location Appartement 3 pièces BRUMATH 67170
Annonce Location 3 pièces Appartement Brumath 67

Description

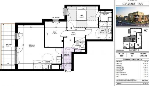
BRUMATH, dans la résidence CARRE OR 2 nous vous proposons un appartement T3 (n°326), d'une superficie de 66 m2 situé au 2ème étage avec ascenseur. Il se compose d'une entrée, d'un séjour-cuisine de 22 m2 avec un balcon de 10 m2 orienté sud, deux chambres, un dressing, un dégagement équipé d'un placard, une salle de bains avec baignoire, WC séparé. Une cuisine équipée disposant d'éléments hauts et bas, d'un évier, d'une plaque vitro, d'un four et d'un lave-vaisselle. Deux parkings extérieur n°9 et intérieur n°28. Chauffage au sol et eau chaude collectif à gaz. Eau froide, ascenseur, espaces verts communs et entretien parties communes, compris dans les provisions sur charges mensuelles et donnant lieu à une régularisation annuelle. Les honoraires de location TTC (à la charge du locataire) incluent le montant de rédaction des états des lieux facturé 200 E TTC, après réalisation lors de l'entrée dans les lieux. Disponible le 31/08/2025. Pour plus de détails sur ce logement, consultez notre site AFEDIM. Les informations sur les risques auxquels ce bien est exposé sont disponibles sur le site Géorisques :
Retour
Autres photos
Plan
Favoris

Contacter l'agence

CM-CIC GESTION IMMOBILIERE
2 Rond Point des Antons CS70304
44703 ORVAULT

Toutes les annonces immobilières de CM-CIC GESTION IMMOBILIERE
08.09.10.28.80 ou 08.10.00.69.36


Recevoir des annonces similaires

Location à proximité de Brumath