recherche immobilières sur mobile

Location Appartement Cluses 2 pièces 39 m2 Haute savoie (74300) - 605 € / mois

location appartement 2 pièces 39 m² région Haute savoie

605 €/mois


Location Appartement 2 pièces CLUSES 74300
Annonce Location 2 pièces Appartement Cluses 74

Description

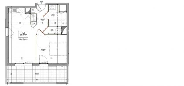
A101 LA GENESE : VENEZ PROFITER D'UNE BELLE VUE AU CALME POUR CE BEAU T2 AVEC TERRASSE DE 12.31M² EXPO PLEIN SUD SITUE AU COEUR D'UNE RESIDENCE RECENTE BBC DE STANDING comprenant une entrée avec rangement, un séjour cuisine US équipée et meublée (hotte, plaques vitro, four, meubles haut et bas), une belle chambre de 11m² en sol parquet, une salle d'eau aménagée avec meuble sous vasque et sèche serviettes. WC séparés. Garage fermé en sous-sol sécurisé. Vidéophone. Chauffage au gaz ind. A 5 MIN A PIED DU CENTRE VILLE. Consommation d'énergie totale entre 520-740EUR par an (prix moyens des énergies indexés au 2021.2022.2023). Les informations sur les risques auxquels ce bien est exposé sont disponibles sur le site Géorisques : www. georisques. gouv. fr
Retour
Autres photos
Plan
Favoris

Contacter l'agence

CONFIANCE IMMOBILIER MONPLAISIR LOCATION
108, avenue des frères Lumière
69008 LYON

Toutes les annonces immobilières de CONFIANCE IMMOBILIER MONPLAISIR LOCATION
04.72.78.89.87


Recevoir des annonces similaires

Location à proximité de Cluses