recherche immobilières sur mobile

Location Appartement Havre 2 pièces 45 m2 Seine maritime (76600) - 703 € / mois

location appartement 2 pièces 45 m² région Seine maritime

703 €/mois


Location Appartement 2 pièces HAVRE 76600
Annonce Location 2 pièces Appartement Havre 76

Description

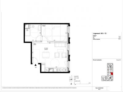
LE HAVRE, dans la résidence neuve "SCENE DE VIE", nous vous proposons ce T2 de 45m², orienté est. Il se compose d'un séjour/cuisine de 25.3m², d'une salle d'eau avec WC ainsi que d'une chambre de 12.5m². Une place de parking complète le logement. Chauffage et eau chaude collectif par pompe à chaleur, entretien parties communes, entretien ascenseur, compris dans les provisions sur charges mensuelles et donnant lieu à une régularisation annuelle. Les honoraires de location TTC (à la charge du locataire) incluent le montant de rédaction des états des lieux facturé pour 135 euros TTC, après réalisation lors de l'entrée dans les lieux. Plus de détails sur notre site AFEDIM. Les informations sur les risques auxquels ce bien est exposé sont disponibles sur le site Géorisques :
Retour
Autres photos
Plan
Favoris

Contacter l'agence

CM - CIC GESTION IMMOBILIERE
2 rond point des AntonsBP70904
44703 ORVAULT

Toutes les annonces immobilières de CM - CIC GESTION IMMOBILIERE
08.09.10.28.80


Recevoir des annonces similaires

Location à proximité de Havre