recherche immobilières sur mobile

Location Appartement Muret 2 pièces 43 m2 Haute garonne (31600) - 600 € / mois

location appartement 2 pièces 43 m² région Haute garonne

600 €/mois


Location Appartement 2 pièces MURET 31600
Annonce Location 2 pièces Appartement Muret 31

Description

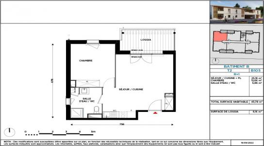
A MURET, dans la résidence récente (2025) "LA MESANGE", nous vous proposons ce T2 de 43.78m². Il est composé d'un séjour cuisine de 25.16m² avec placard, donnant accès à une loggia de 8.16m², d'une salle d'eau avec WC ainsi que d'une chambre de 12.66m². Deux places de parking accompagnent le logement. Chauffage et eau chaude individuel gaz. Entretien parties communes, espaces vert, compris dans les provisions sur charges mensuelles et donnant lieu à une régularisation annuelle. Les honoraires de location de 568 euros TTC (à la charge du locataire) incluent le montant de rédaction des états des lieux facturé pour 131 euros TTC, après réalisation lors de l'entrée dans les lieux. Plus de détails sur notre site AFEDIM. Les informations sur les risques auxquels ce bien est exposé sont disponibles sur le site Géorisques :
Retour
Autres photos
Plan
Favoris

Contacter l'agence

CM-CIC GESTION IMMOBILIERE
2 Rond Point des Antons CS70304
44703 ORVAULT

Toutes les annonces immobilières de CM-CIC GESTION IMMOBILIERE
08.09.10.28.80 ou 08.10.00.69.36


Recevoir des annonces similaires

Location à proximité de Muret