recherche immobilières sur mobile

Location Appartement Chevigny-saint-sauveur 2 pièces 40 m2 Cote d'or (21800) - 528 € / mois

location appartement 2 pièces 40 m² région Cote d'or

528 €/mois


Location Appartement 2 pièces CHEVIGNY-SAINT-SAUVEUR 21800
Annonce Location 2 pièces Appartement Chevigny-saint-sauveur 21

Description

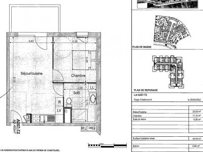
A CHEVIGNY ST SAUVEUR, dans la résidence neuve "LES JARDIN DE CHEVIGNY", nous vous proposons ce T2 de 40.40m². Il se compose d'une pièce de vie de 23m² offrant un accès au balcon, d'une salle d'eau avec WC ainsi que d'une chambre de 11.15m². Chauffage et eau chaude individuel gaz. Entretien parties communes, entretien ascenseur et espaces verts communs, compris dans les provisions sur charges mensuelles et donnant lieu à une régularisation annuelle. Les honoraires de location TTC (à la charge du locataire) incluent le montant de rédaction des états des lieux facturé pour 122 euros TTC, après réalisation lors de l'entrée dans les lieux. Disponible le 09/04/2026. Pour plus de détails sur ce logement, vous pouvez consulter la fiche descriptive de ce bien, sur votre site internet AFEDIM Les informations sur les risques auxquels ce bien est exposé sont disponibles sur le site Géorisques :
Retour
Autres photos
Plan
Favoris

Contacter l'agence

CM-CIC GESTION IMMOBILIERE
2 Rond Point des Antons CS70304
44703 ORVAULT

Toutes les annonces immobilières de CM-CIC GESTION IMMOBILIERE
08.09.10.28.80 ou 08.10.00.69.36


Recevoir des annonces similaires

Location à proximité de Chevigny-saint-sauveur