recherche immobilières sur mobile

Location Appartement Cenon 3 pièces 60 m2 Gironde (33150) - 782 € / mois

location appartement 3 pièces 60 m² 2 chambres région Gironde

782 €/mois


Location Appartement 3 pièces CENON 33150
Annonce Location 3 pièces Appartement Cenon 33

Description

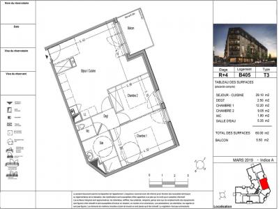
A CENON, c'est ici dans la résidence ART NOUVEAU FG.143800 que nous vous proposons un appartement T3 (LB405), d'une superficie de 60 m² situé au 4ème étage avec ascenseur. Il se compose d'un dégagement, d'un séjour cuisine de 29,10 m² donnant sur un balcon de 5,50 m² orienté Sud-Ouest, d'une salle d'eau, de WC et de deux chambres de 12,20 m² et de 9,05 m². Un emplacement de parking n°PS095 est également à votre disposition. Eau chaude et chauffage (individuel). Entretien parties communes, entretien ascenseur et espaces verts communs, compris dans les provisions sur charges mensuelles et donnant lieu à une régularisation annuelle. Les honoraires de location TTC (à la charge du locataire) incluent le montant de rédaction des états des lieux facturé pour 180euros TTC, après réalisation lors de l'entrée dans les lieux. Disponibilité immédiate. Pour plus de détails sur ce logement, vous pouvez consulter la fiche descriptive de ce bien, sur votre site internet AFEDIM. Les informations sur les risques auxquels ce bien est exposé sont disponibles sur le site Géorisques :
Retour
Autres photos
Plan
Favoris

Contacter l'agence

CM-CIC GESTION IMMOBILIERE
2 Rond Point des Antons CS70304
44703 ORVAULT

Toutes les annonces immobilières de CM-CIC GESTION IMMOBILIERE
08.09.10.28.80 ou 08.10.00.69.36


Recevoir des annonces similaires

Location à proximité de Cenon