recherche immobilières sur mobile

Location Appartement Fouesnant 3 pièces 67 m2 Finistere (29170) - 740 € / mois

location appartement 3 pièces 67 m² 2 chambres région Finistere

740 €/mois


Location Appartement 3 pièces FOUESNANT 29170
Annonce Location 3 pièces Appartement Fouesnant 29

Description

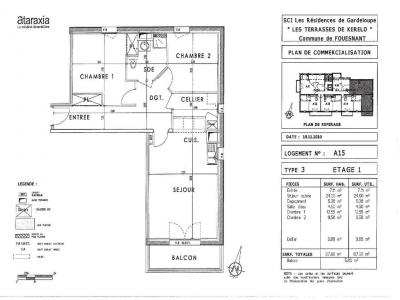
A Fouesnant, dans la résidence Les Terrasses de Ker Elo - Bâtiment A, au 1er étage avec ascenseur, nous vous proposons un appartement T3 n° A15 (lot 58) de 67m² avec balcon de 5.80 m², composé d'une entrée avec placard, d'un séjour avec coin cuisine aménagée , de deux chambres dont une équipée d'un placard, d'un cellier, d'une salle d'eau avec WC et d'un dégagement. Chauffage et eau chaude individuels au gaz. Eau froide individuelle. Un garage extérieur n°15 (lot 33). Entretien parties communes, entretien ascenseur et espaces verts communs, compris dans les provisions sur charges mensuelles et donnant lieu à une régularisation annuelle. Les honoraires de location TTC (à la charge du locataire) incluent le montant de rédaction des états des lieux facturé pour 201 euros TTC, après réalisation lors de l'entrée dans les lieux. Pour plus de détails sur ce logement, vous pouvez consulter la fiche descriptive de ce bien, sur notre site internet AFEDIM. Les informations sur les risques auxquels ce bien est exposé sont disponibles sur le site Géorisques :
Retour
Autres photos
Plan
Favoris

Contacter l'agence

CM-CIC GESTION IMMOBILIERE
2 Rond Point des Antons CS70304
44703 ORVAULT

Toutes les annonces immobilières de CM-CIC GESTION IMMOBILIERE
08.09.10.28.80 ou 08.10.00.69.36


Recevoir des annonces similaires

Location à proximité de Fouesnant