recherche immobilières sur mobile

Parking à vendre Saint-raphael 16 m2 Var (83700) - 25000 €

vente parking 16 m² région Var

25 000 €


Vente Parking SAINT-RAPHAEL 83700
Annonce Vente Parking Saint-raphael 83

Description

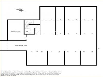
Au sein de cette résidence neuve, une place de parking sécurisé, de type PMR, vous garantissant confort et sécurité, grâce à sa proximité du centre-ville et de nombreux commerces. Dimensions: 5m de long x 3.3m de large (hauteur +/- 4 m - Entre 4m et 4.7m) Place n°15 sur le plan ci-joint Les informations sur les risques auxquels ce bien est exposé sont disponibles sur le site Géorisques :
Retour
Autres photos
Plan
Favoris

Contacter l'agence

NEYRAT IMMOBILIER
1, rue de la Grange Frangy
71100 CHALON SUR SAONE

Toutes les annonces immobilières de NEYRAT IMMOBILIER
04.94.95.65.10 ou 03.85.48.90.12


Recevoir des annonces similaires

Vente à proximité de Saint-raphael