recherche immobilières sur mobile

Location Appartement Grenoble 2 pièces 53 m2 Isere (38100) - 672 € / mois

location appartement 2 pièces 53 m² région Isere

672 €/mois


Location Appartement 2 pièces GRENOBLE 38100

Description

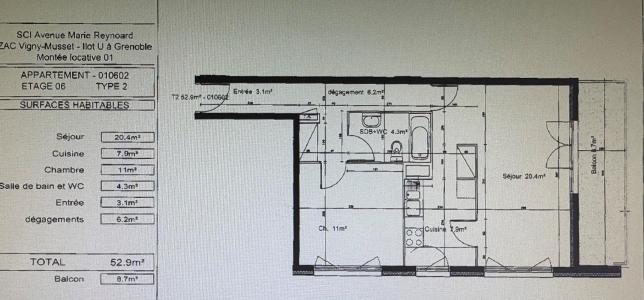
T2 de 52.90m² au 6ème étage avec ascenseur. Entrée, salle de bain, wc, 1 chambre, séjour avec balcon et cuisine séparée. ENVIRONNEMENT Proche des commerces, écoles, collège et clinique. Proximité de transport en commun LES + Proche de toutes commodités
Retour
Autres photos
Plan
Favoris

Contacter l'agence

GRENOBLE HABITAT
44, Av Marcelin Berthelot
38000 GRENOBLE

Toutes les annonces immobilières de GRENOBLE HABITAT
04.76.84.03.44


Recevoir des annonces similaires

Location à proximité de Grenoble