recherche immobilières sur mobile

Location Appartement Cholet 2 pièces 38 m2 Maine et loire (49300) - 574 € / mois

location appartement 2 pièces 38 m² région Maine et loire

574 €/mois


Location Appartement 2 pièces CHOLET 49300
Annonce Location 2 pièces Appartement Cholet 49

Description

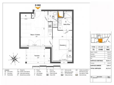
A CHOLET - Nous vous proposons dans la résidence neuve LES RIVES DU LAC, un appartement T2 n°D002 de 38.84m². Situé au RDC du bâtiment D, il comprend un séjour cuisine avec placard de 19.92m² donnant sur une terrasse de 6.89m², une chambre, une salle d'eau et un WC séparé. Chauffage individuel électrique et eau chaude individuel ballon thermodynamique. Une place de parking extérieure n°27. Entretien parties communes, ascenseur et espaces verts communs, compris dans les provisions sur charges mensuelles et donnant lieu à une régularisation annuelle. Les honoraires de location de 426 euros TTC (à la charge du locataire) incluent le montant de rédaction des états des lieux facturé pour 116 euros TTC, après réalisation lors de l'entrée dans les lieux. Plus de détails sur notre site AFEDIM. Logement neuf en cours de construction - DPE à venir. Disponibilité janvier 2026. Les informations sur les risques auxquels ce bien est exposé sont disponibles sur le site Géorisques :
Retour
Autres photos
Plan
Favoris

Contacter l'agence

CM - CIC GESTION IMMOBILIERE
2 rond point des AntonsBP70904
44703 ORVAULT

Toutes les annonces immobilières de CM - CIC GESTION IMMOBILIERE
08.09.10.28.80


Recevoir des annonces similaires

Location à proximité de Cholet