recherche immobilières sur mobile

Location Appartement Savigny-le-temple 2 pièces 43 m2 Seine et marne (77176) - 747 € / mois

location appartement 2 pièces 43 m² région Seine et marne

747 €/mois


Location Appartement 2 pièces SAVIGNY-LE-TEMPLE 77176
Annonce Location 2 pièces Appartement Savigny-le-temple 77

Description

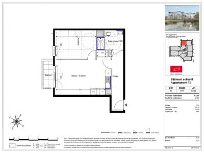
A Savigny-le-Temple, nous vous proposons cet appartement T2 de 43.57m² situé au 1er étage de la résidence Vue Lac avec ascenseur. Il se compose d'un séjour, d'une cuisine, d'une chambre de 11.59 m², d'un balcon de 2.77m² idéal pour vous détendre et d'une salle d'eau avec WC. L'appartement est équipé d'un système de chauffage collectif et d'une production d'eau chaude collective par chaudière à gaz. Les frais d'entretien des parties communes, le local vélo, l'ascenseur et le vigik sont compris dans les provisions sur charges mensuelles et donnent lieu à une régularisation annuelle. Les honoraires de location TTC (à la charge du locataire) incluent le montant de rédaction des états des lieux facturé pour 130 euros TTC, après réalisation lors de l'entrée dans les lieux. Pour plus de détails sur ce logement, vous pouvez consulter la fiche descriptive de ce bien, sur notre site internet afedim-locations. Les informations sur les risques auxquels ce bien est exposé sont disponibles sur le site Géorisques :
Retour
Autres photos
Plan
Favoris

Contacter l'agence

CM-CIC GESTION IMMOBILIERE
2 Rond Point des Antons CS70304
44703 ORVAULT

Toutes les annonces immobilières de CM-CIC GESTION IMMOBILIERE
08.09.10.28.80 ou 08.10.00.69.36


Recevoir des annonces similaires

Location à proximité de Savigny-le-temple