recherche immobilières sur mobile

Appartement à vendre Clichy 3 pièces 62 m2 Hauts de Seine (92110) - 481000 €

vente appartement 3 pièces 62 m² 2 chambres région Hauts de seine

481 000 €


Vente Appartement 3 pièces CLICHY 92110
Annonce Vente 3 pièces Appartement Clichy 92
Acheter Appartement 62 m2 Clichy

Description

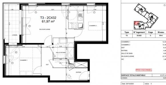
Appartement 3 pièces Double Exposition - Loggia - Parking en sous-sol Situé au 4e étage d'une résidence de standing, ce bel appartement de 62 m² bénéficie d'une double exposition SO et NO, assurant une luminosité optimale tout au long de la journée. Il se compose d'une entrée desservant un vaste séjour avec cuisine ouverte, prolongé par une agréable loggia de presque 7m² m² orienté sud ouest. Deux chambres confortables dont une donnant sur la loggia, une salle de bain équipée et des WC séparés. Un emplacement de stationnement privatif et sécurisé en sous-sol (en supplément, obligatoire) vient compléter ce bien, idéal pour les amateurs de confort et de modernité. La résidence : Résidence à l'architecture contemporaine Conforme à la réglementation environnementale RE 2020 Accessibilité PMR Isolation thermique et phonique renforcée Faibles charges de copropriété A 3 min du métro Cadre de vie familial et pratique : marchés, équipements sportifs et culturels. Prix et conditions : 498 000 euros TTC parking inclus Prix hors parking : 481 000 euros TTC Prix place de parking : 17 000 euros TTC Accompagnement complet jusqu'à la remise des clefs Un expert dédié pour votre résidence principale ou votre investissement locatif Contact dédié : Gabriel de Araujo *sous conditions d'éligibilité à découvrir auprès de votre conseiller ** dans la limite des stocks disponibles, photos non contractuelles
Retour
Autres photos
Plan
Favoris

Contacter l'agence

IMAX IMMO NEUF
2 avenue Gallieni
92400 Courbevoie

Toutes les annonces immobilières de IMAX IMMO NEUF
01.46.91.00.00 ou 06.27.56.39.07


Recevoir des annonces similaires

Vente à proximité de Clichy