recherche immobilières sur mobile

Appartement à vendre Montreuil 5 pièces 93 m2 Seine saint denis (93100) - 726924 €

vente appartement 5 pièces 93 m² 4 chambres région Seine saint denis

726 924 €


Vente Appartement 5 pièces MONTREUIL 93100
Annonce Vente 5 pièces Appartement Montreuil 93
Acheter Appartement 93 m2 Montreuil
Acheter Appartement Montreuil Seine saint denis

Description

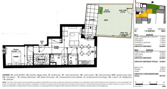
Cette résidence de 8 logements est située dans un emplacement privilégié à proximité immédiate des commerces, écoles et transports en commun. Imax vous propose un duplex de 93m² vous offrant au RDC : une entrée, un séjour avec cuisine ouverte de près de 30m² accédant directement au jardin, une chambre, une salle d'eau et wc A l'étage: 3 chambres dont 2 ouvrant sur un balcon, une salle d'eau et wc. Cuisine aménagée et équipée offerte
Retour
Autres photos
Plan
Favoris

Contacter l'agence

votre agent immobilier IMAX IMMO NEUF (Courbevoie 92400)
IMAX IMMO NEUF
2 avenue Gallieni
92400 Courbevoie

Toutes les annonces immobilières de IMAX IMMO NEUF
01.46.91.00.00 ou 06.27.56.39.07


Recevoir des annonces similaires

Vente à proximité de Montreuil