recherche immobilières sur mobile

Location Appartement Saran 2 pièces 38 m2 Loiret (45770) - 584 € / mois

location appartement 2 pièces 38 m² région Loiret

584 €/mois


Location Appartement 2 pièces SARAN 45770
Annonce Location 2 pièces Appartement Saran 45
Louer Appartement 38 m2 Saran

Description

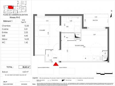
A SARAN - se situe à 15 minutes à pied du centre-ville et à proximité du centre commercial Carrefour Cap, nous vous proposons dans la résidence YOU GREEN, un appartement T2 n°1214 de 38.42m². Situé au 2e étage du bâtiment A, il comprend un séjour de 14.23m², une cuisine ouverte de 3.31m² donnant sur un balcon de 4.65m², une chambre de 12.50m², une salle d'eau et un WC séparé. Chauffage et eau chaude individuels au gaz. Un emplacement extérieur de stationnement n°120. Entretien parties communes, ascenseur et espaces verts communs, compris dans les provisions sur charges mensuelles et donnant lieu à une régularisation annuelle. Les honoraires de location TTC (à la charge du locataire) incluent le montant de rédaction des états des lieux facturé 116 euros TTC, après réalisation lors de l'entrée dans les lieux. Les informations sur les risques auxquels ce bien est exposé sont disponibles sur le site Géorisques :
Retour
Autres photos
Plan
Favoris

Contacter l'agence

CM-CIC GESTION IMMOBILIERE
2 Rond Point des Antons CS70304
44703 ORVAULT

Toutes les annonces immobilières de CM-CIC GESTION IMMOBILIERE
08.09.10.28.80 ou 08.10.00.69.36


Recevoir des annonces similaires

Location à proximité de Saran