recherche immobilières sur mobile

Location Appartement Wattrelos 3 pièces 59 m2 Nord (59150) - 750 € / mois

location appartement 3 pièces 59 m² 2 chambres région Nord

750 €/mois


Location Appartement 3 pièces WATTRELOS 59150
Annonce Location 3 pièces Appartement Wattrelos 59

Description

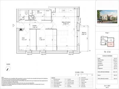
A WATTRELOS, dans la résidence neuve "FIL GREEN", nous vous proposons un appartement T3 de 59.31m². Le logement se compose d'une entrée avec placard, une chambre de 11,04m² et 9,13m², ainsi que d'un séjour avec une cuisine donnant sur le balcon de 5,83m²et d'une salle d'eau avec WC séparé. Une place de parking n°60 complète le lot. Chauffage et eau chaude individuel gaz. Entretien parties communes, entretien ascenseur, compris dans les provisions sur charges mensuelles et donnant lieu à une régularisation annuelle. Les honoraires de location TTC (à la charge du locataire) incluent le montant de rédaction des états des lieux facturé pour 177 euros TTC, après réalisation lors de l'entrée dans les lieux. Plus de détails sur notre site AFEDIM. Logement neuf en cours de construction - DPE à venir Les informations sur les risques auxquels ce bien est exposé sont disponibles sur le site Géorisques :
Retour
Autres photos
Plan
Favoris

Contacter l'agence

CM-CIC GESTION IMMOBILIERE
2 Rond Point des Antons CS70304
44703 ORVAULT

Toutes les annonces immobilières de CM-CIC GESTION IMMOBILIERE
08.09.10.28.80 ou 08.10.00.69.36


Recevoir des annonces similaires

Location à proximité de Wattrelos