recherche immobilières sur mobile

Location Appartement Castelnau-le-lez 1 pièce 22 m2 Herault (34170) - 471 € / mois

location appartement 22 m² région Herault

471 €/mois


Location Appartement CASTELNAU-LE-LEZ 34170
Annonce Location Appartement Castelnau-le-lez 34

Description

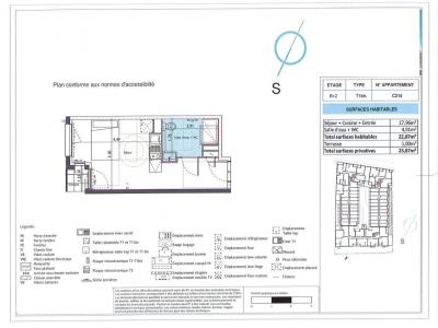
A CASTELNAU-LE-LEZ, nous vous proposons dans la résidence L'OASIS, un appartement T1 n°C215 de 22.87m². Situé au 2e étage du bâtiment C, il comprend une entrée, un séjour de 17.96m² avec cuisine ouverte donnant sur une terrasse de 1.00m², une salle d'eau avec WC. Chauffage collectif par panneaux solaire et eau chaude collectif au gaz avec comptage individuel. Entretien parties communes, ascenseur et espaces verts communs, compris dans les provisions sur charges mensuelles et donnant lieu à une régularisation annuelle. Les honoraires de location TTC (à la charge du locataire) incluent le montant de rédaction des états des lieux facturé pour 69.00 euros TTC, après réalisation lors de l'entrée dans les lieux. Pour plus d'informations sur ce bien, consultez notre site AFEDIM. Les informations sur les risques auxquels ce bien est exposé sont disponibles sur le site Géorisques :
Retour
Autres photos
Plan
Favoris

Contacter l'agence

CM-CIC GESTION IMMOBILIERE
2 Rond Point des Antons CS70304
44703 ORVAULT

Toutes les annonces immobilières de CM-CIC GESTION IMMOBILIERE
08.09.10.28.80 ou 08.10.00.69.36


Recevoir des annonces similaires

Location à proximité de Castelnau-le-lez