recherche immobilières sur mobile

Location Appartement Saint-nazaire 3 pièces 59 m2 Loire atlantique (44600) - 716 € / mois

location appartement 3 pièces 59 m² 2 chambres région Loire atlantique

716 €/mois


Location Appartement 3 pièces SAINT-NAZAIRE 44600
Annonce Location 3 pièces Appartement Saint-nazaire 44

Description

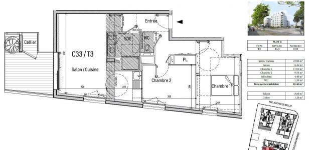
SAINT NAZAIRE, dans la résidence LE MERMOZ, appartement T3 C33 de 59,40 m² situé au troisième étage avec ascenseur et exposé sud et ouest. Il se compose d'une entrée avec placard, d'un séjour cuisine aménagée et équipée (four, plaques et hotte) donnant sur un balcon de 8,60m² exposé ouest, d'un cellier de 1,20 m², deux chambres, d'une salle d'eau et WC séparé. Un garage n°43. Chauffage et eau chaude individuels gaz. Eau froide, entretien ascenseur, espaces verts communs et entretien parties communes, compris dans les provisions sur charges mensuelles et donnant lieu à une régularisation annuelle. Les honoraires de location TTC (à la charge du locataire) incluent le montant de rédaction des états des lieux facturé pour 178 euros TTC, après réalisation lors de l'entrée dans les lieux. Plus de détails sur notre site AFEDIM. Les informations sur les risques auxquels ce bien est exposé sont disponibles sur le site Géorisques :
Retour
Autres photos
Plan
Favoris

Contacter l'agence

CM-CIC GESTION IMMOBILIERE
2 Rond Point des Antons CS70304
44703 ORVAULT

Toutes les annonces immobilières de CM-CIC GESTION IMMOBILIERE
08.09.10.28.80 ou 08.10.00.69.36


Recevoir des annonces similaires

Location à proximité de Saint-nazaire