recherche immobilières sur mobile

Location Appartement Sete 3 pièces 60 m2 Herault (34200) - 747 € / mois

location appartement 3 pièces 60 m² 2 chambres région Herault

747 €/mois


Location Appartement 3 pièces SETE 34200
Annonce Location 3 pièces Appartement Sete 34

Description

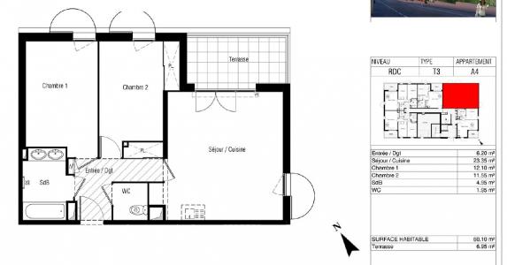
SETE, dans la résidence LES JARDINS DU CARMEL dans le bâtiment A, que nous vous proposons un appartement T3 (A4), d'une superficie de 60 m² situé au RDC. Il se compose d'une entrée avec placard, d'un séjour-cuisine (aménagée et équipée) de 23 m² donnant sur une terrasse de 6.95 m², d'une salle de bain, WC séparé et deux chambres. Un emplacement de parking n°9 est également à votre disposition. Chauffage individuel électrique. Eau froide, eau chaude, entretien parties communes, espaces verts communs, compris dans les provisions sur charges mensuelles et donnant lieu à une régularisation annuelle. Les honoraires de location TTC (à la charge du locataire) incluent le montant de rédaction des états des lieux facturé pour 180 euros TTC, après réalisation lors de l'entrée dans les lieux. Disponible le 14/11/2025. Pour plus de détails sur ce logement, vous pouvez consulter la fiche descriptive de ce bien, sur votre site internet AFEDIM Les informations sur les risques auxquels ce bien est exposé sont disponibles sur le site Géorisques :
Retour
Autres photos
Plan
Favoris

Contacter l'agence

CM-CIC GESTION IMMOBILIERE
2 Rond Point des Antons CS70304
44703 ORVAULT

Toutes les annonces immobilières de CM-CIC GESTION IMMOBILIERE
08.09.10.28.80 ou 08.10.00.69.36


Recevoir des annonces similaires

Location à proximité de Sete