recherche immobilières sur mobile

Location Appartement Clermont-ferrand 3 pièces 59 m2 Puy de dome (63000) - 783 € / mois

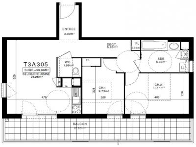
location appartement 3 pièces 59 m² 2 chambres région Puy de dome

783 €/mois


Location Appartement 3 pièces CLERMONT-FERRAND 63000

Description

A305 LE FLAUBERT : T3 COCON ENTIEREMENT TOURNE VERS SA TERRASSE DE 18M² SANS VIS-A-VIS DANS RESIDENCE RECENTE (2024) DE STANDING A FAIBLE CONSOMMATION ENERGETIQUE. Pièce à vivre claire avec cuisine US aménagée (plaques vitro, four, hotte, meubles hauts et bas) .2 chambres en sol parquet dont une avec placard mural aménagé. Salle de bain avec meuble sous vasque et sèche-serviettes. Place de parking privative en sous-sol privative. CHAUFFAGE IND AU GAZ. VISIOPHONE. PROCHE COMMERCES. Consommation d'énergie totale entre 433 EUR et 586 EUR par an (prix moyens des énergies indexés au 1er janvier 2021). Les informations sur les risques auxquels ce bien est exposé sont disponibles sur le site Géorisques : www. georisques. gouv. fr
Retour
Autres photos
Plan
Favoris

Contacter l'agence

CONFIANCE IMMOBILIER MONPLAISIR LOCATION
108, avenue des frères Lumière
69008 LYON

Toutes les annonces immobilières de CONFIANCE IMMOBILIER MONPLAISIR LOCATION
04.72.78.89.87


Recevoir des annonces similaires

Location à proximité de Clermont-ferrand